Firm
Team
Services
Portfolio
Contact
Instagram
LinkedIn
Portfolio
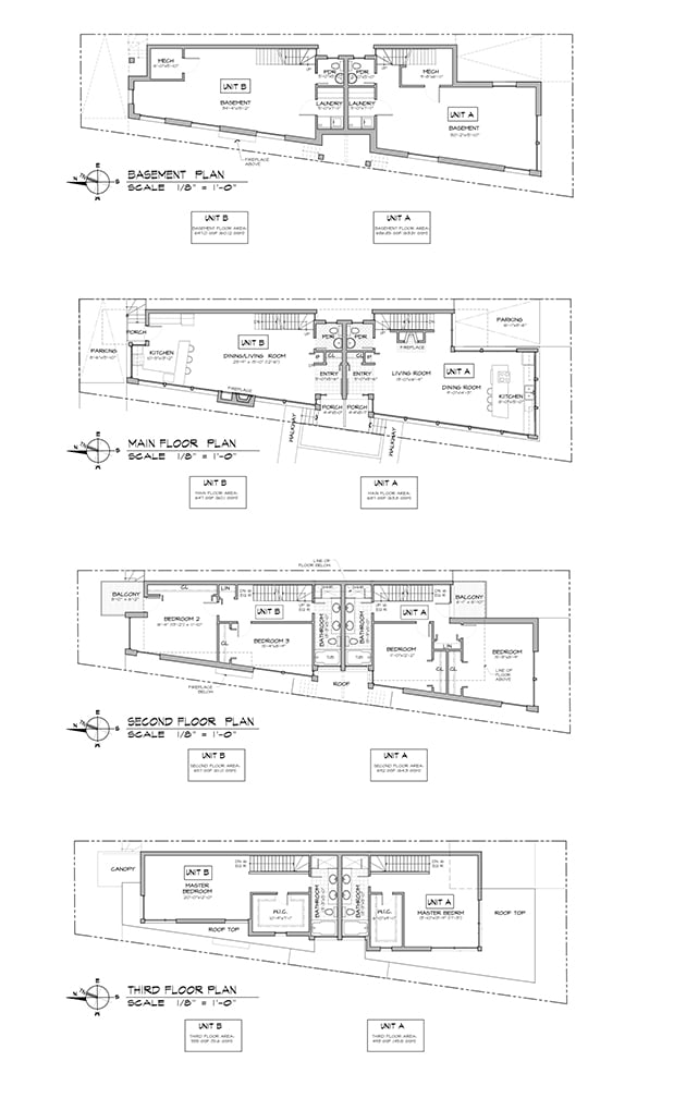
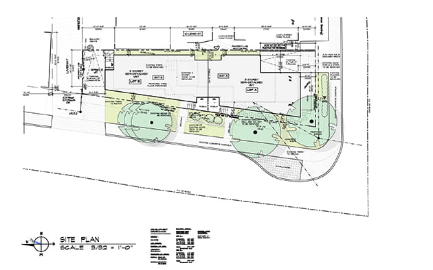
Lewis
Multi-unit residential
PREVIOUS
BACK TO PORTFOLIO
NEXT