Firm
Team
Services
Portfolio
Contact
Instagram
LinkedIn
Portfolio
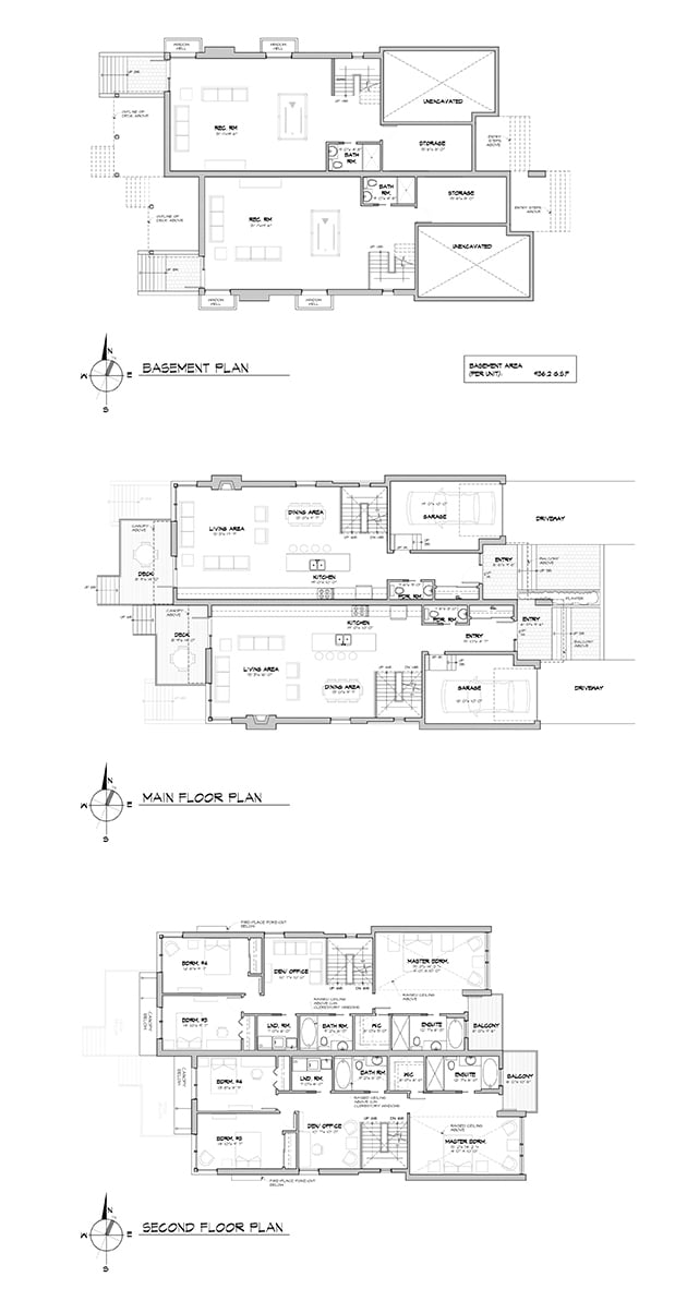
Royal
Multi-unit residential
2008
Ottawa, ON
PREVIOUS
BACK TO PORTFOLIO
NEXT